精益求精,匠心制造10余年专注自控糖心视频APP官网入口研制

服务热线021-60528933

糖心官网入口糖心视频APP官网入口精工铸造,品类丰富,一站式选购配套更省心
上一页
下一页

ZZWPE自力式电控温度调节阀

ZZWPE自力式电控温度调节阀

自力式电控温度调节阀(适用于较大口径及导热油控制),该阀最大的特点只需普通220V电源,利用被调介质自身能量,直接对蒸汽、热水、热油与气体等介质的温度实行自动调节和控制,亦可使用在防止对过热或热交换场合,该阀结构简单,操作方便,选用调温范围广、响应时间快、密封性能可靠,并可在运行中随意进行调节,因而广泛应用于化工、石油、食品、轻纺、宾馆与饭店等部门的热水供应。

服务热线: 021-60528933


一、自力式电控温度调节阀结构与原理
调节阀由主阀、智能执行器与传感器三部分组成,根据用户需要,分别有加热型与冷却型两种结构。
1.加热型调节阀的结构与原理,见附图示:

工作前主阀芯处于半开位置,传感器处于自然状态。接上电源,主阀芯全开。介质由箭头方向流入主阀体、经阀芯对储热箱进行加热。当温度升到相应设定值时,传感器即产生相应线性信号输入一体化智能执行机构,随即驱动阀杆、阀芯产生位移,关闭主阀芯停止加热。当温度低于设定值时,传感器即产生线性信号输入执行机构,驱使阀芯渐开,使介质按抛物线特性流入储热箱,进行加热直至设定值。这样被控介质始终在设定温度范围内被控制,从而达到控温目的。

图片5

外型示意图
1)智能型执行器
(2)主阀体
(3)传感器
(4)毛细管
(5)手动机构
备注:常说的加热型、冷却型。在此阀中只要更换阀芯结构即可以实现。

一、自力式电控温度调节阀主要参数与材料

1、主要参数表

图片6

三、自力式电控温度调节阀 配套用电动执行机构有关技术参数
图片7

*表中数据仅为常规配置,具体选用根据主要参数及用户要求而定。

电子型-单位:mm

图片8

图片9

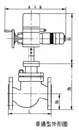
四、自力式电控温度调节阀外型尺寸及重量  

普通型-单位:mm

图片10

图片11

六、自力式电控温度调节阀 连接尺寸及标准

·法兰标准:铸铁法兰按GB4216-84、铸钢法兰按GB9113-88
· 法兰密封面型:PN10、PN16为凸面 PN40 、PN64为凹凸面,阀体为凹面
·结构长度:GB12221-89 
· 夹套保温型夹套载热体接口:对焊φ18×4
* 阀体法兰及法兰端面距离可以按用户指定的标准制造。如ANSI 、JIS 、DIN等标准。

七、订货须知
订货时请用户提供以下资料:
·调节阀名称、型号
·公称通径(mm)
·公称压力 (MPa)
·额定流量系数(Kv)
·固定流量特性
·介质名称、阀前后压力、温度、流量等 
·整机作用方式(电开、电关)及输入信号 
·阀体、阀内件及填料材质 
·附件(操作器、伺服放大器等) 
·其他特殊要求

热品推荐 / Hot product

RW72高压糖心VLGO官网入口

高压糖心VLGO官网入口RW72

RW72系列不锈钢高压糖心VLGO官网入口,不锈钢活塞压力传输,压力控制准确,用手调节上游压力,适用于纯净气体、标准气体、腐蚀性气体、液体等。
RW200精密糖心VLGO官网入口

RW200精密糖心VLGO官网入口

糖心官网入口糖心视频APP官网入口RW200精密糖心VLGO官网入口的气室设计,其背压精度比弹簧式糖心VLGO官网入口高5倍,可达6000Psig,精度高,稳定性好,气液两相条件下的性能优良,适用于纯净介质和腐蚀性介质。
液体糖心VLGO官网入口LBF  液体泄压阀LAF

液体糖心VLGO官网入口LBF 液体泄压阀LAF

LBF系列液体糖心VLGO官网入口,采用膜片式结构,用于膜片压力传输,用于泵的出口,稳定压力,稳定流量,防止液体回流,也可以安装在支路中作泄压阀使用。与阻尼器配合使用,减小液体波动。
真空糖心VLGO官网入口RW76

真空糖心VLGO官网入口RW76

RW76系列真空糖心VLGO官网入口,不锈钢膜片压力传输,压力控制准确,用于调节管道真空压力的大小,适用于标准气体、腐蚀性气体、液体等。可面板安装。

糖心官网入口糖心视频APP官网入口产品中心

全国服务热线

021-60528933

相关推荐资讯

直动式糖心视频下载APP与先导式糖心视频下载APP的区别

直动式糖心视频下载APP与先导式糖心视频下载APP的区别

直动式糖心视频下载APP与先导式糖心视频下载APP的区别是什么?糖心官网入口糖心视频APP官网入口告诉您!先导式糖心视频下载APP是采用控制阀体内的启闭件的开度来调节介质的流量,将介质的压力降低,同时借助阀后压力的作用调节启闭件的开度,使阀后压力保持在一定范围内,在进口压力不断变化的情况下,保持出口压力在设定的范围内,保护其后的生活生产器具。本类糖心视频APP官网入口在管......
什么是单向阀

什么是单向阀

单向阀又称止回阀或逆止阀。用于液压系统中防止油流反向流动,或者用于气动系统中防止压缩空气逆向流动。今天糖心官网入口糖心视频APP官网入口为您介绍一下什么是单向阀。一、简介单向阀有直通式和直角式两种。直通式单向阀用螺纹连接安装在管路上。直角式单向阀有螺纹连接、板式连接和法兰连接三种形式。液控单向阀也称闭锁阀或保压阀,它与......
糖心视频APP官网入口的维护保养方式有哪些

糖心视频APP官网入口的维护保养方式有哪些

糖心视频APP官网入口品种及规格相当繁多,主要用于截止、导流、稳压、分流等,用途广泛。正确和有序有效的维护保养会保护糖心视频APP官网入口,使糖心视频APP官网入口正常发挥功能并且延长糖心视频APP官网入口使用寿命。今天糖心官网入口糖心视频APP官网入口为您介绍一下糖心视频APP官网入口的维护保养方式。日常糖心视频APP官网入口维护保养1、糖心视频APP官网入口应存干燥通风的室内,通路两端须堵塞。2、长期存放的糖心视频APP官网入口应定期检查,清除污物,并在加工......
我国糖心视频APP官网入口市场的现状及前景如何

我国糖心视频APP官网入口市场的现状及前景如何

糖心视频APP官网入口是工业上一种重要的流体控制设备,涉及到国民经济诸多部门,是国民经济的发展重要基础设备。今天糖心官网入口糖心视频APP官网入口带大家一起分析一下我国糖心视频APP官网入口市场的现状及前景。经过几十年的发展,我国糖心视频APP官网入口产品已经形成十几大类,在企业数量和产销量两方面均在世界上排名靠前,但大多是小规模、低层次糖心视频APP官网入口的企业,产品也以中低端为主。改......
网站地图